Kallnach
Home > Objekte > Mietobjekt > Wohnen im Alter – 2.5-Zimmer Alterswohnung zu vermieten
Mietobjekt
Neu

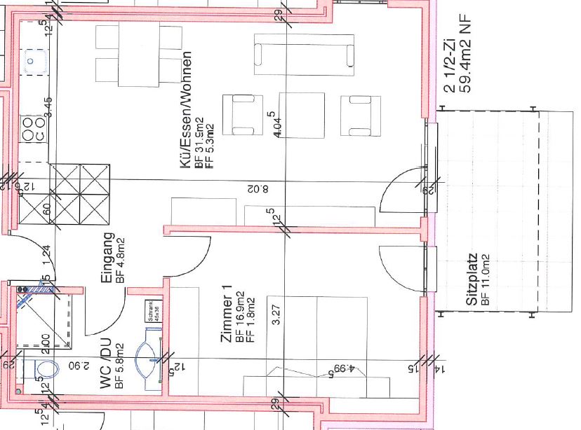
Wohnen im Alter – 2.5-Zimmer Alterswohnung zu vermieten

Per 16. Juni 2026 oder nach Vereinbarung vermieten wir am Mitteldorf 27 in Kallnach eine attraktive und grosszügige 2.5-Zimmer-Alterswohnung im Erdgeschoss. Die Wohnung kann von Interessentinnen und Interessenten ab dem 50. Lebensjahr gemietet werden.

Die moderne Küche ist mit einem Geschirrspüler sowie einem Glaskeramikkochfeld ausgestattet und bietet beste Voraussetzungen, um Ihre Kochkünste zu entfalten. Küche und Wohnzimmer verfügen über einen pflegeleichten Plattenboden, während im Schlafzimmer ein angenehmer Laminatboden für Wohnkomfort sorgt.

Das grosszügige Badezimmer mit ebenerdiger Dusche ermöglicht einen bequemen und sicheren Einstieg. Ein praktischer Einbauschrank im Korridor schafft zusätzlichen Stauraum.

Auf der Terrasse lässt sich ein gemütlicher Sitzplatz einrichten, um die ruhige Umgebung zu geniessen und zu verweilen.

Zur Wohnung gehören ein Kellerabteil im Untergeschoss sowie die Nutzung der gemeinschaftlichen Waschküche. Ein Einstellhallenplatz kann für CHF 100.00 pro Monat dazu gemietet werden.

Der Bahnhof ist in wenigen Gehminuten erreichbar und bietet direkte Verbindungen nach Aarberg und Kerzers. Das charmante Städtchen Aarberg erreichen Sie zudem in kurzer Fahrzeit und finden dort vielfältige Einkaufsmöglichkeiten und Restaurants. In Kallnach selbst stehen Ihnen ein Dorfladen für den täglichen Bedarf sowie schöne Spazierwege zur Verfügung.

Haben wir Ihr Interesse geweckt?
Wir freuen uns auf Ihre Kontaktaufnahme und zeigen Ihnen die Wohnung gerne bei einem unverbindlichen Besichtigungstermin.

Wohnfläche
60 m²
Anzahl Zimmer
2.5
Preis
CHF 1'147.- pro Monat
Verfügbar ab
16. Juni 2026 oder nach Vereinbarung

Lage des Objekts

Adresse:

Mitteldorf 27, Kallnach, Schweiz